
First, the good news in the latest twist in Hudson’s Sandy Beach saga — flora and fauna will get a much-needed break from years of public traffic and environmental degradation.
On Friday, the Town of Hudson announced the beach and access trails will be off limits until further notice as the administration considers its options.
“The trails leading to the beach are currently on private property and are no longer accessible to the public,” the town posted on its Facebook page. “The [town] must now assess all possible scenarios to provide access to the beach in full compliance with government standards.”
The bad news? Access to the beach will be closed for at least the next year and possibly forever, depending on whether Quebec’s notoriously fickle environment ministry approves an alternative access trail in an ecologically fragile conservation zone.
Wasn’t the current council elected on a promise to protect the environment, especially Sandy Beach?
At Monday’s May meeting, council will begin the long process with votes on modifications to existing parking and park-use bylaws. For residents, it’s the first opportunity to ask for details on how much of Sandy Beach Nature Park will remain accessible and where or how beach access will be blocked. Will the Town barricade the western end of the footbridge or will pedestrians be able to cross to connect with the entrance off Beach? Will the summer daytime dog ban remain in effect?
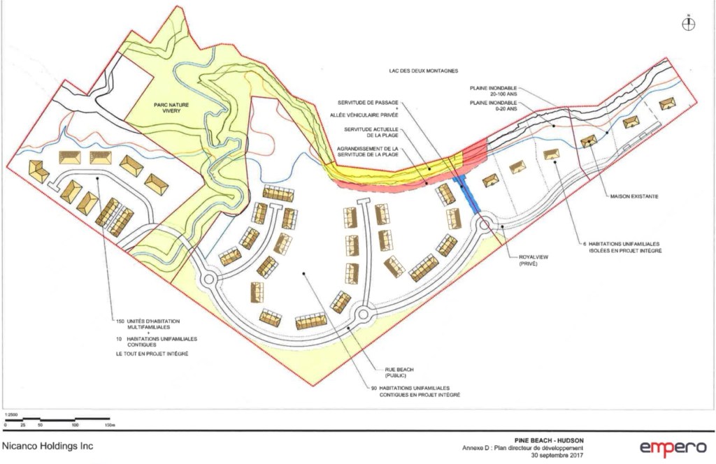
A key question is who will shoulder the cost of enforcing the no-parking rule on Beach road or policing the beach for trespassers. Another is the status of Beach road itself. Residents living on Royalview, a cul-de-sac at the far end of Beach, have a servitude to travel on it, but the stretch between Royalview and the exo right-of-way remains private and belongs to the developers. A recent request by Royalview residents to have their street revert to private was refused by the town because their lots weren’t buildable unless they faced on a public road — an MRC requirement.
UPDATE: responding to questions at last night’s meeting, Mayor Hutchison confirmed the town would shoulder the costs of policing Sandy Beach and enforcing a parking ban on Beach road. The town’s concern is that the 2017 development agreement includes clauses giving the landowner grounds to invalidate the beach servitude in the case of non-compliance
Residents requesting a copy of the 2017 agreement will need to file an Access to Information request and may receive a redacted version, the mayor told citizens.
In response to questions on where citizens will have legal access, the mayor said no-trespassing signage has been ordered but gave no further details.
A post on the Town’s website provides some insight into the elaborate approval process required to reopen the beach, beginning with the hiring of SAGIE Inc., an environmental consultant the Town has used in past dealings with the environment ministry.
It quotes SAGIE’s Gérald Renaud: “the area targeted by the project to relocate a section of the Sandy Beach trail is a riparian area of the Outaouais River subject to regulation by the Ministry of the Environment, Climate Change, Wildlife, and Parks. This control involves a study of the ecological characteristics (fauna, flora, and habitat) and water characteristics (coastline, shoreline, and flood zone), which will make it possible to establish whether the project needs to be submitted to the Ministry for authorization.”
Only once the ministry’s approval has been confirmed can the town award a contract for a proposed access trail. “It is currently impossible to put forward a date for the reopening of the beach, as the Town does not control the deadlines for the stages that are the responsibility of other partners,” the town post reads.

The easiest fix
The obvious solution is a waterfront trail or boardwalk between town-owned land and the beach, running parallel to the existing trail, which passes on the developers’ land. But for that to happen, the town will need a new certificate of authorization (CA) from the environment ministry for a legal walking path and the prep work that goes with it.
The new path to the beach would pass along the waterfront of Lot # 3080946, the 10-acre parcel which Nicanco ceded to the town in a 2017 development agreement with the outgoing Prévost administration. This stretch of town property touches the beach servitude, but there’s no current CA for a trail.

“If you go to the infolot website, and search for lot 3080946, this is the lot Nicanco ceded to the town,” explains someone familiar with the file. “You will notice a beak-like extension at the top right. The beak’s easternmost (right-most) limit is exactly where the beach servitude begins.”
The current walking path runs on Nicanco’s lot # 3080948, just below the beak-like extension. “So to get to the beach (unless one trespasses) the town needs to create a path through the “beak”. This will require a CA, and everything that goes into preparing said CA. Perhaps the current council is prepared to go for eco-compensation should any flora or fauna needs protection.”
My source predicts this will take many months, if not years to negotiate with the help of consultants, possibly putting taxpayers on the hook for ecological compensation.

The biggest unknown is how much further the Hudson-Nicanco deal will unravel. Although a land transfer isn’t reversible in law, Nicanco could argue that the 20 plus years of covenants creating Sandy Beach Nature Park and the beach servitude were part of an overall agreement, now in pieces as the result of a cascade of events.
Because of the current council’s fixation on blocking Sandy Beach development, Hudson residents may never regain access to the town’s one public beach. The only glimmer of hope is that the environment they vowed to protect may actually be protected. At least for a year.


